Các dòng máy phát điện hiện đại thường được thiết kế để chịu được các điều kiện khắc nghiệt như tiếng ồn, nước và bụi bẩn, cho phép chúng hoạt động ngoài trời. Tuy nhiên, việc đặt máy phát điện bên ngoài, đặc biệt là ở các khu dân cư hoặc khu vực có nhiều tòa nhà cao tầng, có thể gây mất mỹ quan, chiếm không gian và tạo ra tiếng ồn ảnh hưởng đến môi trường xung quanh. Chính vì thế, việc xây dựng một phòng riêng biệt cho máy phát điện là một giải pháp thiết yếu.
Việc thiết kế và xây dựng phòng máy phát điện diesel cần được xem xét một cách cẩn thận để đảm bảo sự hài hòa với kiến trúc tổng thể của tòa nhà hoặc nhà máy, đồng thời tạo điều kiện thuận lợi cho việc lắp đặt đường dây điện, kết nối với các hệ thống khác, di chuyển máy vào phòng, bảo trì, sửa chữa và đảm bảo tính thẩm mỹ chung cho toàn bộ khu vực. Để đạt được điều này, việc tư vấn với các kỹ sư thiết kế là vô cùng quan trọng để đảm bảo sự phù hợp và hiệu quả của dự án.
Các Tiêu Chuẩn Quan Trọng Khi Xây Dựng Phòng Máy Phát Điện
- Việc xây dựng phòng máy phát điện là một yêu cầu quan trọng để đảm bảo tính thẩm mỹ, giảm thiểu tiếng ồn và khí thải trong quá trình vận hành. Vị trí của phòng máy có thể linh hoạt, từ tầng hầm, tầng kỹ thuật của các tòa nhà cao tầng, chung cư, đến các khu vực bên ngoài tòa nhà hoặc nhà xưởng, tùy thuộc vào quy mô và đặc điểm của từng dự án cụ thể.
- Quá trình xây dựng phòng máy phát điện đòi hỏi sự tính toán kỹ lưỡng để đảm bảo sự hài hòa với cấu trúc xây dựng, tạo điều kiện thuận lợi cho việc lắp đặt dây cáp hoặc kết nối với các hệ thống khác. Việc di chuyển máy vào phòng, thực hiện bảo trì và sửa chữa cần được thực hiện dưới sự tư vấn của các kỹ sư thiết kế để đảm bảo tính hoàn thiện tổng thể của dự án.
- Để xây dựng một phòng máy phát điện hiệu quả, cần nắm vững những thông tin cơ bản sau: công suất của máy phát điện, kích thước tổng thể của tổ máy, và phương án vận chuyển máy vào phòng.
I. Nền Tảng Thiết Kế
Hồ sơ thiết kế phòng máy phát điện được xây dựng dựa trên các yếu tố chính sau:
- Bản vẽ thiết kế kiến trúc của công trình.
- Các tiêu chuẩn và quy phạm thiết kế hiện hành, bao gồm:
| Quy chuẩn xây dựng Việt nam | |
| QCXDVN 09:2005 | Quy chuẩn xây dựng Việt nam – các công trình xây dựng sử dụng năng lượng có hiệu quả |
| 11 TCN 18¸21:2006 | Quy phạm trang bị điện |
| TCVN-4756:1989 | Quy phạm nối đất và nối không |
| TCXD 25:1991 | Đặt đường dẫn điện trong nhà ở và công trình công cộng – Tiêu chuẩn thiết kế |
| TCXD 27: 1991 | Đặt thiết bị điện trong nhà ở và công trình công cộng – Tiêu chuẩn thiết kế |
| TCXDVN 394:2007 | Thiết kế lắp đặt trang thiết bị điện trong các công trình xây dựng – Phần an toàn điện |
Quy chuẩn xây dựng Việt Nam:
QCXDVN 09:2005: Quy chuẩn xây dựng Việt Nam – Các công trình xây dựng sử dụng năng lượng hiệu quả.
11 TCN 18¸21:2006: Quy phạm trang bị điện.
TCVN-4756:1989: Quy phạm nối đất và nối không.
TCXD 25:1991: Đặt đường dẫn điện trong nhà ở và công trình công cộng – Tiêu chuẩn thiết kế.
TCXD 27: 1991: Đặt thiết bị điện trong nhà ở và công trình công cộng – Tiêu chuẩn thiết kế.
TCXDVN 394:2007: Thiết kế lắp đặt trang thiết bị điện trong các công trình xây dựng – Phần an toàn điện.
II. Các Tiêu Chuẩn và Giải Pháp Kỹ Thuật Cần Thiết
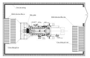
1. Xác Định Kích Thước Phòng Máy
Kích thước của phòng máy phát điện cần đáp ứng ba tiêu chí quan trọng sau:
- Chiều rộng phòng máy phải đủ lớn, bằng chiều rộng của máy cộng với khoảng không gian tối thiểu 800mm ở mỗi bên giữa máy và tường. Nếu phòng máy còn chứa các thiết bị khác như bồn dầu dự phòng hoặc tủ điện, cần tính toán thêm chiều rộng của các thiết bị này.

- Chiều dài phòng máy cần bao gồm chiều dài của máy, chiều dài của hệ thống tiêu âm gió vào và gió ra, chiều dài của chụp thoát gió, cùng với khoảng cách tối thiểu 1000mm. Tương tự như chiều rộng, nếu có thêm bồn dầu hoặc tủ điện, cần tính thêm chiều dài của chúng.
- Chiều cao phòng máy phải đủ để chứa chiều cao của máy, chiều cao của bộ giảm thanh và ống khói, cùng với khoảng không gian tối thiểu 1000mm.

2. Bệ Máy và Hệ Thống Giảm Chấn
- Đối với các máy phát điện có công suất nhỏ, việc xây dựng bệ máy không quá cần thiết. Tuy nhiên, đối với các máy có công suất lớn, nên xây dựng bệ máy hoặc lắp đặt thêm lò xo giảm chấn để đảm bảo khả năng chịu lực tác động của máy lên sàn và giảm thiểu rung động trong quá trình hoạt động.
- Bệ máy phát điện nên được xây dựng bằng bê tông cốt thép, có độ dày từ 10cm đến 30cm, và kích thước lớn hơn kích thước tổng thể của máy phát từ 10cm đến 50cm ở mỗi bên để tạo không gian cho việc lắp đặt lò xo giảm chấn và thao tác vận hành.
- Việc lắp đặt thêm lò xo giảm chấn cho các máy công suất lớn giúp giảm thiểu rung động tác động trực tiếp xuống sàn. Khi lựa chọn lò xo giảm chấn, cần đảm bảo tải trọng tổng của lò xo lớn hơn gấp đôi tải trọng của máy. Ví dụ, nếu máy có tải trọng 8 tấn, cần lắp 8 lò xo giảm chấn (mỗi bên 4 lò xo), sao cho mỗi lò xo chịu được tối thiểu 2 tấn.
3. Hệ Thống Tiêu Âm Cho Phòng Máy
Tại các công trình gần khu dân cư, khu vực đông người, bệnh viện, trường học, việc giảm thiểu độ ồn khi máy phát hoạt động là vô cùng quan trọng để tránh gây ô nhiễm tiếng ồn. Để đạt được điều này, cần áp dụng các biện pháp chống ồn (cách âm) cho phòng máy bằng cách xây dựng hệ thống tiêu âm hoặc sử dụng bộ giảm thanh cho máy.
Tiêu chuẩn độ ồn thông thường ở Việt Nam yêu cầu:
Hệ thống tiêu âm cho phòng máy bao gồm:
- Tiêu âm tường và trần phòng máy: Sử dụng khung thép, bông thủy tinh tỷ trọng từ 80-100kg/m3, vải bọc chống cháy và tôn đột lỗ, với độ dày tiêu âm từ 80-100mm.
- Khối tiêu âm đầu vào và đầu ra: Sử dụng vật liệu tương tự như tiêu âm tường và trần, được ghép thành các khối đan xen nhau để giảm tiếng ồn gió vào. Diện tích khối tiêu âm đầu vào nên bằng 1.3-1.5 lần diện tích két nước, còn diện tích khối tiêu âm đầu ra nên bằng 1.1-1.3 lần diện tích két nước.
- Bộ giảm thanh sơ cấp và thứ cấp: Bên ngoài làm bằng thép, bên trong bộ sơ cấp chứa bông thủy tinh tỷ trọng 80-100kg/m3, bọc vải chống cháy và tôn đột lỗ. Bộ giảm thanh thứ cấp bên trong chứa các ống đan xen.
- Cửa chớp gió vào và gió ra: Làm bằng thép hàn thành khối với các nan chớp và lưới inox chống chuột, có chức năng lấy gió từ bên ngoài và xả khí nóng ra.

4. Hệ Thống Cấp Dầu
Với các máy phát điện công suất nhỏ, bồn chứa dầu diesel thường được thiết kế tích hợp trên khung máy và đảm bảo đủ nhiên liệu cho máy chạy 100% tải từ 5-12 giờ. Tuy nhiên, với các máy phát điện công nghiệp công suất lớn, việc thiết kế bồn dầu diesel kèm theo thường không khả thi do kích thước lớn của máy, điều này sẽ làm tăng kích thước và trọng lượng của tổ máy, gây khó khăn cho việc di chuyển.
Dung tích bồn dầu cần được tính toán dựa trên công suất và mức tiêu thụ dầu của máy. Thông thường, có hai hệ thống cấp dầu chính:
- Hệ thống cấp dầu một bồn: Chỉ cần đấu nối đường ống dẫn dầu, van đóng mở và thước thăm dầu. Động cơ sẽ tự động lấy dầu cấp cho máy chạy mà không cần bơm.
- Hệ thống cấp dầu hai bồn trở lên: Cần có hệ thống bơm tự động để cấp dầu từ bồn dự trữ đến bồn dầu ngày. Hệ thống này hoạt động theo nguyên lý tự động bơm dầu khi mức dầu trong bồn ngày giảm xuống dưới một mức nhất định.

5. Hệ Thống Thoát Khí Thải
Tương tự như hệ thống tiêu âm, hệ thống thoát khí thải cũng cần tuân thủ các tiêu chuẩn để giảm thiểu lượng khí thải gây ô nhiễm ra môi trường. Việc lắp đặt hệ thống này là cần thiết để đáp ứng các yêu cầu về bảo vệ môi trường.
Tiêu chuẩn khí thải được đánh giá dựa trên các thông số sau:
| Tên chỉ tiêu | Đơn vị | Phương pháp thử | QCVN 19:2009/BTNMT/B |
|---|---|---|---|
| CO | Mg/Nm3 | TCVN 7242:2003 | ≤ 1000 |
| SO2 | Mg/Nm3 | US EPA method 6 | ≤ 500 |
| NO2 | Mg/Nm3 | US EPA method 6 | ≤ 850 |
| Bụi tổng | Mg/Nm3 | US EPA method 6 | ≤ 200 |
Hệ thống thoát khí thải bao gồm đường ống dẫn khói và bộ lọc khói:
- Đường ống dẫn khói: Làm bằng ống thép mạ kẽm, bọc bảo ôn bằng bông thủy tinh tải trọng 80-100kg/m3, bên ngoài bọc inox, hoặc sử dụng ống inox.
- Bộ lọc khói: Đảm bảo khí thải từ động cơ không có màu đen và nồng độ các loại khí độc hại nằm trong phạm vi cho phép theo các chỉ tiêu trên.
Bộ lọc khí thải thường được làm bằng thép không gỉ T304 để đảm bảo tuổi thọ lâu dài. Bộ lọc này được chế tạo phù hợp với Báo cáo thử nghiệm số 2599209, tháng 9 năm 1999, theo các qui định của Ban tiêu chuẩn sản phầm của Singapore, dựa trên tiêu chuẩn Anh BS 3405 91983.

Bộ lọc khí thải hoạt động dựa trên nguyên lý các phản ứng hóa học:
- CO + 1/2O2 → CO2
- HC + 1/202 → CO2 + H2O
- PAH + O2 → CO2 + H2O
- Aldehydes + O2 → CO2 + H2O
Nồng độ các loại khí thải sau khi qua bộ lọc:
- Carbon Monoxide * giảm đến 90%
- Hydrocarbons * giảm đến 90%
- Hạt muội * giảm tới 25-30%
- Phân số hữu cơ hòa tan * giảm lên đến 85%
(* Trong điều kiện nhiệt và điều hành tối ưu)
6. Hệ Thống Tiếp Địa Cho Phòng Máy
Trong phòng máy phát điện, cần lắp đặt hai hệ thống nối đất:
- Hệ thống tiếp địa cho trung tính máy phát: Rnd <= 4 W.
- Hệ thống tiếp địa an toàn cho vỏ máy biến áp, vỏ tủ hạ thế và vỏ thiết bị điện khác: Rnd <= 4 W.
Hệ thống nối đất trạm phòng máy phát bao gồm các tầm nối đất và dây nối đất.
Tất cả trung tính máy phát, vỏ máy, giá đỡ, tủ hạ thế, cửa thép ra vào và các vật liệu bằng thép đều được nối với hệ thống tiếp địa.
7. Hệ Thống Chiếu Sáng
Hệ thống chiếu sáng là một phần quan trọng trong quá trình lắp đặt máy phát điện, cần đảm bảo các yêu cầu sau:
- Bố trí đầy đủ đèn chiếu sáng và ổ cắm điện.
- Dây dẫn điện phải là loại dây lõi đồng bọc PVC, tiết diện trung bình 2×1.5mm2, luồn trong ống thép.
- Hệ thống chiếu sáng cần cung cấp đủ độ sáng trong quá trình vận hành và bảo trì.
8. Phòng Chống Cháy Nổ
Máy phát điện hoạt động liên tục có thể tiềm ẩn nguy cơ cháy nổ. Ngoài ra, các yếu tố bên ngoài cũng có thể gây ra cháy nổ. Do đó, khu vực lắp đặt máy phát điện cần được trang bị đầy đủ các thiết bị phòng chống cháy nổ:
- Trang bị bình cứu hỏa trong phòng máy phát điện.
- Lắp đặt hệ thống điện tự ngắt khi có dấu hiệu cháy nổ.
Hướng Dẫn Lắp Đặt Máy Phát Điện Dự Phòng
Các Bước Chuẩn Bị Cần Thiết

Các Bước Chuẩn Bị Cơ Bản
Các bước chuẩn bị cơ bản cho việc lắp đặt máy phát điện thường giống nhau, bao gồm:
- Lập sơ đồ lắp đặt máy phát điện trong hệ thống điện.
- Chuẩn bị đầy đủ phương tiện và dụng cụ cần thiết.
- Xây dựng bệ móng cho máy phát điện.
- Tính toán phương án vận chuyển máy phát, số lượng nhân công tham gia.
- Chuẩn bị hệ thống giàn giáo, dây an toàn.
- Đặt biển báo khu vực thi công.
Di Chuyển Máy Phát Điện Vào Vị Trí
Sử dụng gỗ kê tại khu vực cửa ra vào, sử dụng con lăn và cần cẩu tự hành để hạ máy phát xuống đúng vị trí. Quá trình di chuyển cần được thực hiện cẩn thận. Có thể sử dụng 4 kích nâng để điều chỉnh hướng đi của con lăn.
Đánh Dấu Vị Trí Lắp Đặt
Vị trí lắp đặt máy phát điện cần tuân theo hướng dẫn trong bản vẽ. Sử dụng mực để đánh dấu vị trí của bệ máy và bệ đỡ.
- Định vị bệ móng và các vị trí bu lông.
- Vận chuyển và lắp đặt máy phát điện bằng hệ thống con lăn.
- Kiểm tra và cố định máy phát điện tại vị trí đã đánh dấu.
Nghiệm Thu Hiện Trường Sau Khi Lắp Đặt
Sau khi hoàn thành quá trình lắp đặt, bên yêu cầu thi công sẽ tiến hành nghiệm thu. Quá trình này cần có sự tham gia của cả hai bên hoặc bên thứ ba nếu cần thiết. Biên bản nghiệm thu cần có chữ ký của cả hai bên. Nếu phát hiện quá trình lắp đặt chưa đúng, khách hàng có quyền yêu cầu bên thi công thực hiện lại.
Trên đây là các tiêu chuẩn và hướng dẫn lắp đặt máy phát điện. Nếu bạn còn bất kỳ thắc mắc nào, vui lòng liên hệ để được giải đáp.

